1050000 €
PARIS
Descriptif: Parmi ses offres, l’AGENCE DUPLEIX vous propose cet appartement traversant de 7 pièces, situé dans une rue calme à proximité immédiate du métro Argentine (ligne 1).
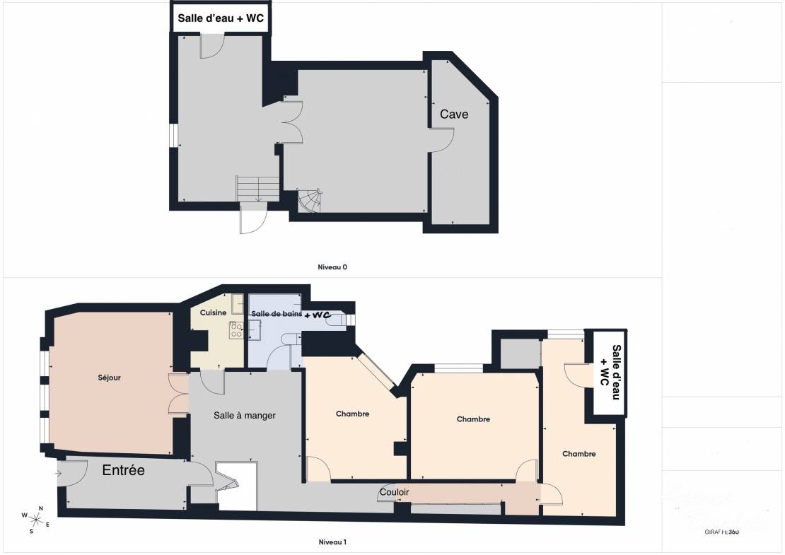
Au sein d’un bel immeuble en pierre de taille avec gardien, cet appartement se compose, au rez-de-chaussée, d’une entrée, d’un séjour, d’une salle à manger, d’une cuisine séparée, d’un dégagement avec placards, de trois chambres au calme sur cour, ainsi que de deux salles d’eau avec WC.
En complément, un escalier en colimaçon mène à un souplex composé de deux pièces de respectivement 22 m² et 18 m², d’une salle d’eau avec WC, ainsi que d’une cave de 10 m².
Actuellement aménagé, le souplex offre de multiples possibilités d’usage : salle de sport, salle de cinéma, pièce de loisirs… Cet espace est un véritable prolongement de l’appartement, offrant une surface complémentaire à s’approprier pleinement selon ses besoins.
Superficie totale hors cave : 151,97 m²
RDC : 107,44 m² au sol et 103,89 m² loi Carrez
Souplex : 44,53 m² + 10,52 m² de cave
Eau chaude et chauffage collectif Montant moyen annuel de la quote-part, à la charge du vendeur, du budget prévisionnel correspondant aux dépenses courantes (art 14-1 loi n°65-557 du 10/07/65) 7 869€/an soit 1 967€/trimestres . Taxe Foncière 2025: € DPE ENR : E 326 et GES : E 66 Montant estimé des dépenses annuelles d'énergie pour un usage standard : 4 280€ à 5 820€ Année de référence des prix de l'énergie utilisés pour établir cette estimation: 2021/2022/2023 Honoraires d'agence à la charge de l'acquéreur de 4%ttc, soit un montant de 40 000€ ttc. Prix de vente honoraires exclus de 1 010 000€. Bien soumis au statut de la copropriété. Nombre de lots: 42 .Pas de procédure en cours. Les informations sur les risques auxquels ce bien est exposé sont disponibles sur le site Géorisques : www.georisques.gouv.frv
Date de réalisation du DPE : 27/01/2026
Prix moyens des énergies indexés au 27/01/2026 (abonnements compris)
